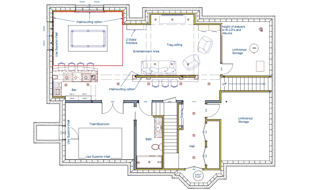
This Finished Basement in Hatfield, PA captures the homeowner’s vision of an in-home Irish pub. This expansive basement has many features designed specifically for the customer’s needs—including special lighted displays for his model trains, custom-depth drawers to store his extensive record collection, and an accessible bathroom. The stone fireplace and sports bar backsplash give this spacious basement just the right amount of rustic, cozy feel. Design and Construction by Meridian.
Our Customer Said:“We recently completed a major design and build project in our 1500 square feet basement using Meridian Construction, and we must say we are extremely satisfied with the results. We had a pretty good idea what we wanted to achieve when we started the project, but had no idea how much better it would turn out, due to the efforts of the team at Meridian.
When we started our search for a contractor, we knew we were looking for a one-stop, design and build solution. We had heard many stories about people who decided to use one company for the design work, and then use another company for the construction phase. Or worse yet, those who chose to hire multiple sub-contractors to perform the framing, electrical, plumbing, HVAC, and other portions of the project. We decided not to go down that road. We spent several few weeks on the internet researching different D&B contractors in the local area; both via websites like Angie’s List and Houzz, and found a few likely candidates. After review of the Meridian Construction website, which depicts photo-shoots of many of their completed projects and actual customer reviews, we took the plunge and called Meridian. After our first one hour meeting at their office with Larry Giannone, one of the owners, and the rest of his staff, we knew we had found the right company for our project.
After we signed the design contract, the real work began. Through a series of weekly meetings, usually held at Meridian’s office through the design phase, we walked thru each step of the Meridian process. First, Larry and his design assistant, Austin, came out to our house and took complete measurements of our basement. Then, after review of some sketches of a proposed layout we had previously made, and a thorough discussion of what our goals and objectives were, Austin put everything in a computer program that gave us 2D and 3D dimensional views of our plans. It became very evident that we needed to make some changes, and with Larry and Austin’s guidance, we made significant improvements to our layout. This process got finer and finer in detail as we went along, everything – including electrical, plumbing, ceiling, flooring, doors, fireplace, bathroom and bar fixtures, cabinetry – was included in those plans. And each time, Austin would update the computer program, so we could see the changes clearly in great detail. And with each change, Martha, Meridian’s project coordinator, would update a cost spreadsheet and provide us with accurate cost update at all times. Through this process, we got to our final layout. Meridian then took all that information and developed a comprehensive construction quotation, which included all anticipated costs.
We were pleased with the quotation, and by this time, we had developed a great working relationship with Larry and his team. By our original agreement, we could have taken those plans and gone to another contractor for the construction phase. However, there was no question we would continue on with Meridian.
After we signed the construction contract, we picked out the material options for our renovation: plumbing fixtures and tile options for the bathroom, floor and ceiling for all four rooms, stone for the fireplace and the specific gas fireplace to be installed, granite for the bar areas, electrical fixture and outlet options, cabinets for the bar and entertainment area, and paint colors and trim options for all areas. This process was made easy by Meridian: by providing an allowance quote for every item with each supplier in their original quotation, we could decide if and where we wanted to stretch the budget. The allowances were generally spot-on, and we chose where we wanted to upgrade. Meridian provided a list of preferred vendors for these items, and as we visited each supplier, who all were very helpful during this process, and all had a great working relationship with Meridian. Once the selections were all made, Martha updated her cost spreadsheets and we made a few changes to meet our budget requirements.
We were now ready to move on to the actual construction phase. We were to the key members of the Meridian construction team – Mick Giannone, Larry’s brother and business partner, who runs the construction team, and Matt, the on-site construction leader, who worked on our renovation from start to finish. As this phase began, we met with Larry at our house every week, to review progress and discuss the next week’s activity. Even more importantly, we resolved unforeseen issues – in most cases, things that my wife and I thought of that could improve our project. This would require Larry and Austin’s input for feasibility and cost. And each week, we would confer with Larry and Matt in the basement to review final decisions on stone fireplace construction, granite sizes for bar areas, the height of the tray ceiling for the entertainment area, and others.
We were also impressed with Meridian efforts during this project. First, we have a physically challenged grandson (muscular dystrophy) who we want to be able to accommodate inthe basement area. Larry and Austin took care of details, such as the design of a handicapped-accessible bathroom and shower area, and the reinforcement of one set of steps to accommodate a chair lift for installation at a later date. Second, we have several antique model trains that we wanted to display. Larry and Austin suggested in-wall shelving with backlighting in the hallway, which turned out wonderfully. Third, we wanted a state-of-the-art, in-wall home theater system in the entertainment area. We had a local audio shop in mind for the installation and were pleased to hear that Meridian already had a great working relationship with them. The two companies collaborated to make the entertainment area a total success.
With the project completed, we would say that not only are we over-the-top satisfied with our basement renovation, we feel we have become friends with the folks at Meridian. Their attention to detail is unbelievable, and it shows in the final product. We have already talked with Larry abouta few other projects in our home, and would highly recommend anyone to consider Meridian Construction for their renovation work.”
The Journey
Let’s Talk
Request a no-hassle consultation with our team today.